Działka na sprzedaż Zabierzów, Burów

3007.00 m²
581,98 zł/m2
KOR-GS-37
Oblicz ratę kredytu

1 750 000 zł

Działka na sprzedaż
Bez prowizji

Szczegóły oferty

Symbol oferty KOR-GS-37
Powierzchnia 3 007,00 m²
Przeznaczenie działki mieszkaniowa, budowlana, inwestycyjna
Standard
Zagosp. działki niezagospodarowana
Ukształtowanie działki lekko nachylona
Kształt działki prostokąt
Ogrodzenie działki brak
Woda tak - miejska
Prąd na działce
Kanalizacja tak
Pomieszczenia

Opis nieruchomości

DZIAŁKA INWESTYCYJNA Z PRAWOMOCNYM PNB – GOTOWA POD ZABUDOWĘ | WIDOK NA KLASZTOR W BIELANACH

Na sprzedaż atrakcyjna działka inwestycyjna o powierzchni 3007 m², idealna dla dewelopera lub inwestora szukającego gotowego projektu do realizacji.

Najważniejsze atuty:

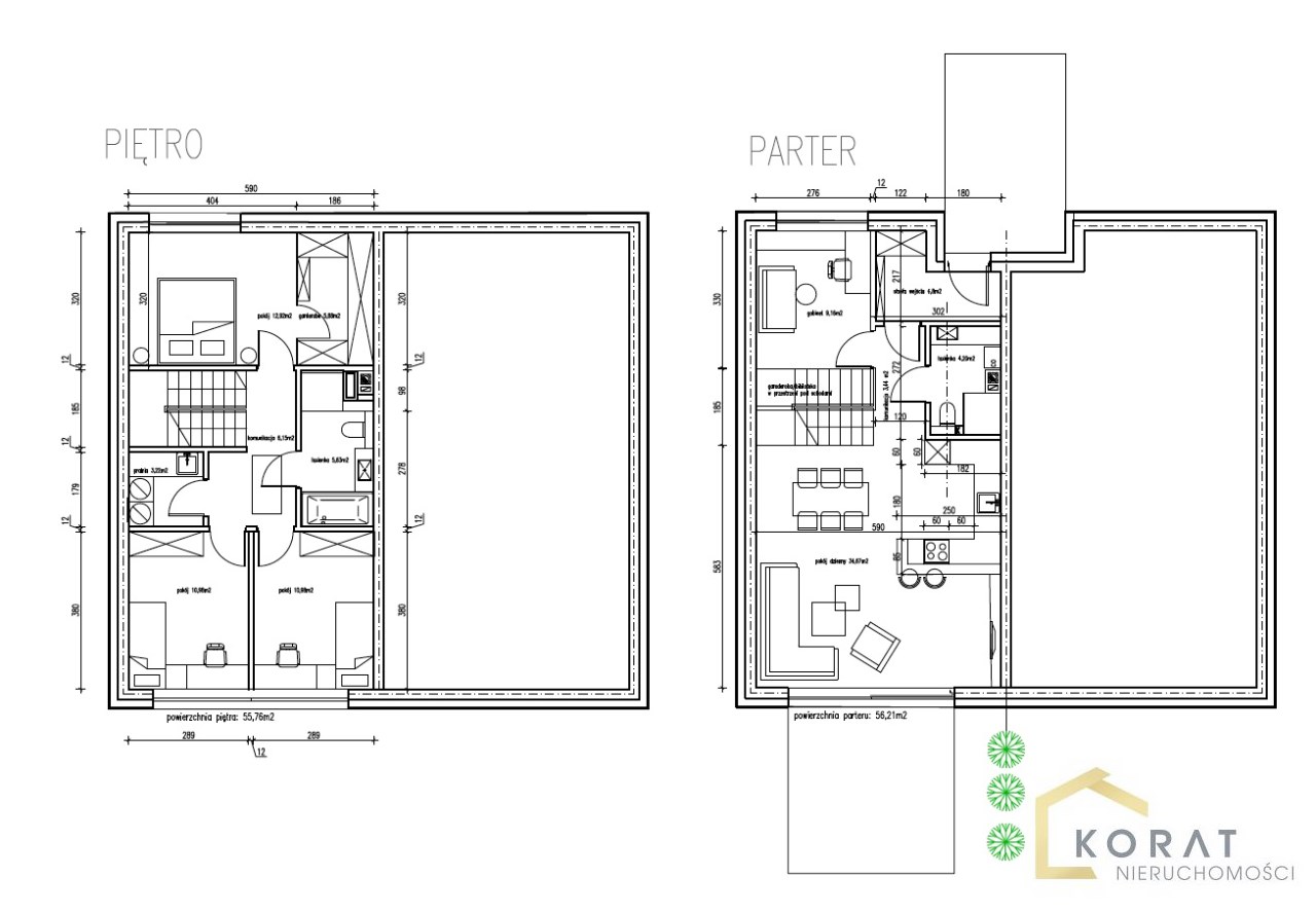
  •  Prawomocne pozwolenie na budowę (PNB) na 4 budynki dwulokalowe
  •  Każdy lokal o powierzchni użytkowej 111,41 m² (891,28 m² łącznie)
  •  Możliwość szybkiego rozpoczęcia inwestycji – działka gotowa do wejścia
  •  Doskonała ekspozycja – działka położona na wzniesieniu
  •  Piękny widok na klasztor w Bielanach

Media:

  • prąd
  • woda
  • kanalizacja
    wszystkie media dostępne w granicach działki

Lokalizacja i potencjał:
Nieruchomość położona w atrakcyjnej i rozwijającej się okolicy, idealnej pod kameralne osiedle. Połączenie widokowego terenu i gotowej dokumentacji sprawia, że jest to oferta o wysokim potencjale inwestycyjnym.

Oferta skierowana do:

  • deweloperów
  • inwestorów budowlanych
  • firm realizujących projekty mieszkaniowe

???? Zapraszam do kontaktu w celu uzyskania szczegółów oraz dokumentacji inwestycji.

Kalkulatory

Kalkulator kredytowy

Wysokość raty

PLN
%

Kalkulator kosztów

Podatek od czynności cywilno-prawnych

Taksa notarialna
(opłata notarialna)

Wniosek o wpis do KW

VAT od prowizji
agencji nieruchomości

VAT od taksy notarialnej
(opłaty notarialnej)

Prowizja agencji nieruchomości

Wypisy aktu notarialnego

Razem

Uwaga: mogą wystąpić dodatkowe opłaty za założenie księgi wieczystej oraz ustanowienie hipoteki.

PLN
PLN
PLN
PLN
PLN
PLN
%
PLN

Proszę wprowadzić poprawne imię i nazwisko
Proszę wprowadzić poprawny numer telefonu
Proszę wprowadzić poprawny adres e-mail
Proszę zaznaczyć wymagane zgody
Rozwiąż równanie:
29 6
Niepoprawny wynik